
Savjeti Mirjane Mikulec za moderno uređenje stana od 46 kvadrata

Stan od 46 četvornih metara uskoro postaje novi povremeni dom vlasniku koji živi u Švicarskoj. Ovaj stan koristit će za vrijeme svog privremenog boravka u Zagrebu, sve dok ne postanme njegov dom u budućnosti.
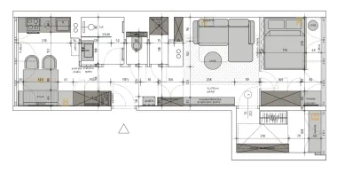
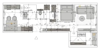
Kako bi stan bio funkcionalniji i prilagođeniji životu, vlasnik je odlučio provesti preuređenje koje uključuje stvaranje dodatne spavaće sobe unutar postojećeg dnevnog boravka. Također, želio je povećati praktičnost prostora te unaprijediti raspored prostorija. Stan se sastoji od dvije sobe – veće, koja služi kao dnevni boravak, i manje, koja je primarno spavaća soba, uz dodatne prostorije. Za prijedlog novog rasporeda i organizacije prostora, vlasnik je angažirao tim studija Mirjane Mikulec, a arhitektica Nina Radun osmislila je dva moguća rješenja koja se razlikuju u položaju nove spavaće zone unutar dnevnog boravka.
Dvije varijante
"Klijent je želio u dnevnom boravku odvojiti spavaći dio koji bi bio glavna spavaća soba, a da postojeća mala soba ima krevet na sklapanje pa da se po potrebi pretvori u gostinjsku", objasnila je arhitektica Nina Radun. Od predložene dvije varijante, vlasnik je odabrao drugu.
Prema njoj, od dnevnog boravka je spavaća soba odijeljena staklenom stijenom čime se dobio spavaći dio kod prozora, a koji se može po potrebi zakriti povlačenjem zastora i time potpuno odvojiti od dnevnog dijela.
Osim novog rasporeda prostorija, vlasnik je imao i dodatne zahtjeve za uređenje stana. Umjesto klasičnog televizora, preferirao je projekcijsko platno, a želio je i posebnu vitrinu za svoju kolekcionarsku zbirku.
U sklopu preuređenja kupaonice, tražio je da WC bude u zasebnoj prostoriji, a također je želio dodatan prostor za praonicu rublja s perilicom i sušilicom. Umjesto postojeće kade, ugrađen je walk-in tuš koji je u ravnini s podom, što doprinosi modernom i praktičnom dizajnu kupaonice.
"S obzirom da živi sam, klijent je želio da kupaonica ima dio zida kroz koji prolazi svjetlo iz stana. Zato je dio zida kupaonice napravljen od sivih staklenih opeka kroz koje se ne vidi, no propušta se svjetlost", otkrila je arhitektica.
Najveće promjene dogodile su se u središnjem dijelu stana, gdje je porušena središnja mračna jezgra, što je omogućilo potpuno otvoren i prozračan prostor. Zahvaljujući ovom potezu, cijeli stan sada izgleda svjetlije i vizualno veće, a prostori su povezani u jednu harmoničnu cjelinu.
Što se tiče uređenja, boje materijali i teksture odabrane su prema karakteru samog klijenta te se on od prve oduševio izborom jer su premašena njegova očekivanja. Sve što je odabrano nije na prvu tipično za male prostore.
"Ovdje ne vrijedi pravilo da se u malim stanovima koriste samo svijetle nijanse da bi se povećao prostor. Načinom na koji su logično definirane, a ujedno i povezane cjeline stana, bilo je dopušteno izabrati tamno drvo, tamno zelenu boju i crnu kuhinju, a da se previše ne zatvori prostor. Cijelom dužinom stana ide parket na riblju kost koji povezuje sve u jednu cjelinu i prostor se vizualno doima većim", zaključuje arhitektica.

Bonton za rak: Što NE reći prijateljici koja je oboljela od raka

Baloneri, parke i bomberice: Stradivarius ima stylish jakne za jesen

Koju kombinaciju biste nosili? Zagrepčanke odlično nose visoke čizme
