
Šarmantni mali stan u središtu Rovinja uređen prema ideji Mirjane Mikulec

Mali stan smješten na zadnjem katu zgrade iz 18. stoljeća, u srcu starog Rovinja, dobiva novo ruho zahvaljujući idejnom rješenju koje potpisuje studio Mirjane Mikulec. Dizajnerski tim osmislio je uređenje prema željama i potrebama vlasnika – bračnog para koji će stan koristiti za povremeni boravak. Idejno rješenje ključno je polazište u procesu preuređenja interijera, a izrađuje se na temelju zahtjeva klijenata. Kroz 3D vizualizaciju vlasnici mogu jasno vidjeti kako će njihov budući dom izgledati, a prijedlog se može prilagođavati do konačne verzije.
Mali stan u staroj jezgri Rovinja
Vlasnici su prihvatili prijedlog uređenja i interijer je trenutno u preuređenju. Riječ je naime o interijeru za povremeno stanovanje površine oko 40 kvadrata, koje je zatečen u prilično lošem stanju i bila je potrebna temeljita renovacija.
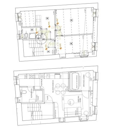
Promjena tlocrta u malom stanu
Vlasnici su izrazili želju da, uz dnevni boravak, stan ima i odvojenu spavaću sobu, zbog čega je bilo potrebno prilagoditi izvorni tlocrt. Umjesto dva ulaza, koja nisu imala praktičnu funkciju, novi raspored predviđa samo jedan. Rušenjem pregradnih zidova dnevne prostorije postignut je otvoreniji, povezani prostor koji obuhvaća dnevni boravak, dok je spavaća soba zasebna. Izvorno, stan je imao veliki hodnik, kuhinju, dvije sobe i kupaonicu, no preinake su ga učinile funkcionalnijim i jednostavnijim za korištenje.
Mali stan u Rovinju ima povezan dnevni prostor
Zajednički dnevni prostor nepravilnog je oblika te je kuhinja malo izdvojena, a s boravkom je povezuje blagovaonski stol. Iz kuhinje, koja je nekad bila hodnik se ulazi u kupaonicu, a iz dnevnog boravka u malu spavaću sobu. Zahtjevi vlasnika odnosili su se i na formiranje radnog kutka koji je novim rasporedom stavljen u spavaću sobu te sofe na razvlačenje u dnevnom boravku.
Budući da je stan u staroj zgradi, studio Mirjane Mikulec želio je istaknuti autentični element gradnje, prijedlog da se maknu spušteni stropovi kako bi krovne grede bile vidljive. Tijekom renovacije i one bi bile obnovljene.
Namještaj po mjeri u malom stanu
Većina namještaja izrađena je po mjeri, kako bi se bolje iskoristio prostor, a odabir boja, uzoraka i stila je odraz želje vlasnika koji su željeli da njihov stan odiše rustikalnom estetikom s i ima poveznice s Istrom i općenito Mediteranom.

dm slavi peti rođendan online shopa i poklanja vam dodatne bodove

Horoskop za srijedu: Ovnovima će biti zanimljivo na poslu, škorpioni samo strpljivo

Čaj od šipka više je od običnog napitka – otkrijte njegove moćne prednosti
